Calcaire Comblanchien
Calcaire Hauteville
-
Maîtrise d'œuvre : Michel Trubert ( ACMH )
- 2 000 m² de dalles, dont :
- 1 900 m² de comblanchien
- 100 m² de Hauteville banc E

Réalisation du Parvis de l'Opéra à Vichy en calcaire Comblanchien et Hauteville
Ce chantier, a consisté en la réalisation (remplacement) du dallage en pierre naturelle du parvis de l'opéra, et d'une rampe d'accès PMR, elle aussi en pierre naturelle. Cette réalisation se distingue de par son cadre, et les exigences qui en découlent : l'Opéra de Vichy et son parvis sont classés monuments historiques.
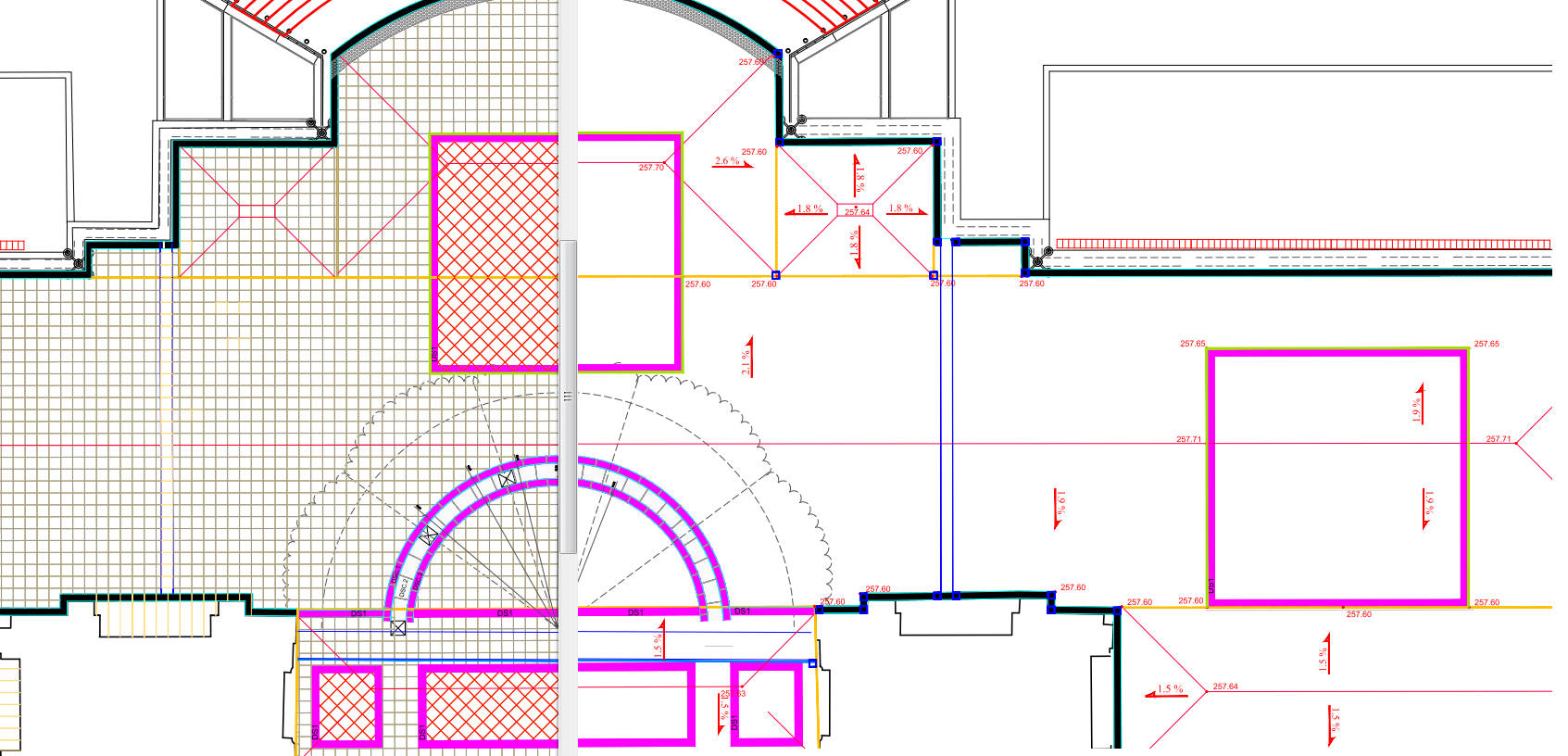
Le premier point particulier que l'on peut relever est que ce parvis abrite, en sous-sol, des locaux aménagés et chauffés. Une dalle étanchée constitue donc le sol support pour la pose, avec les nombreuses contraintes qui en découlent : approvisionnement des palettes à distance (pas de circulation d'engin possibles sur le parvis), risque de poinçonnement des couches d'étanchéité, évacuation des eaux de ruissellement, et altimétrie imposée par cette couche d'étanchéité, à recoller avec le niveau fini.
S'ajoute à cela, comme nous pouvons le voir sur le schéma ci-dessus, un calepinage complexe, dû à une volonté de la maîtrise d'œuvre de ne pas placer les systèmes exutoires au centre du parvis, mais bien de placer des caniveaux-fentes en périphérie, le long des rambardes. Les écoulements d'eau se font donc du centre du parvis, vers les zones périphériques, sans que des lignes de points bas de récupération des eaux ne viennent "couper" la surface dallée du parvis.
Enfin, un géo-composite drainant a été installé, entre la dalle d'étanchéité et le mortier de pose, afin de guider plus efficacement les eaux qui s'infiltrent au travers de la pierre et des joints-mortiers vers les exutoires en périphérie du parvis. Ainsi, aucune retenue d'eau n'est possible, et donc toute dégradation de la couche de pose (gel, ruissellement dans le mortier de pose qui peut finir par désolidariser ce dernier) est évitée.
Vichy - Parvis de l'Opéra
Vichy - Parvis de l'Opéra
Vichy - Parvis de l'Opéra
Vichy - Parvis de l'Opéra
Vichy - Parvis de l'Opéra
Vichy - Parvis de l'Opéra
Vichy - Parvis de l'Opéra
Vichy - Parvis de l'Opéra
It's easier than ever. Balbooa.com